世界杯下单官方网站-官网入口

ELEVATOR DOOR SYSTEM电梯门系统

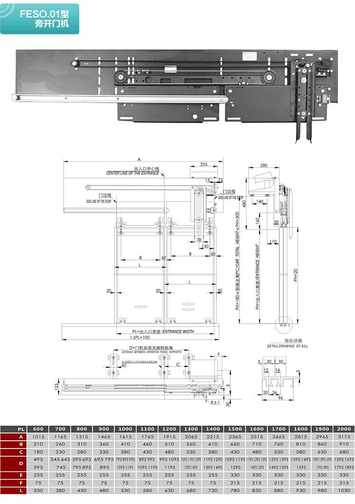
FESO.01型旁开门机